优牧墙布创始人陈荣仁:以品质为基础,打造高品质软装品牌
近年来,墙布越来越流行,在蓬勃的市场态势...
说商业 | 说设计 | 说创新
每次说点新东西
很多人对话梅HARMAY的印象,便是那金属外墙下,工业风的设计,没错,这不是工厂,不是博物馆,而是一家叫话梅HARMAY的美妆店。

2008年淘宝起家,2017年取得平均月销1500万元的成绩,同年在上海开出家线下实体店。2019年北京三里屯门店开业, 話梅如风暴般席卷了美妆圈,随后逐步演变为“美妆+咖啡”、“美妆+茶饮”的模式,以“美妆+”模式构建体验场景,其“一店一设”的独特审美击中了无数年轻人,围绕客户需求,美妆店的外壳下更像是一个拥有全业态的商业综合体,为消费者创造无缝的消费场景并各取所需,从而成就了话梅的新零售样板,重塑新零售概念里的人、货、场,创造更高的商业价值。

①定制门店 塑造专属记忆
话梅的设计以其独特的美学为体系,以城市为画布,用话梅视角重新解读城市之美,将品牌语言藏在门店的一砖一瓦里,从北京店的前卫流水线、上海店的新潮酒店后厨、香港店的复古药剂室、成都店的“蜀道”,再到西安店“城市声音漫游”设计概念,建立一个艺术气息与趣味并存的购物场景,打破商业与艺术、人文、生态的边界,增加顾客购物时的人文体验与趣味性,探索更多关于美和美好的生活的品牌理念。
②自助购物 打造沉浸空间
话梅一直在思考如何在公共空间与私人生活之间取得平衡,对比传统美妆集合店热情的导购,话梅倡导开放式、免打扰的自主购物模式,恰好抓住了当下消费者热衷于探索的特点,为消费者提供自由的消费场景,致力于让每一位到店的顾客都能获得归属感,随性自在地享受购物过程,将沉浸式购物融入美妆领域,打造全新零售模式。
③小样引流 发展品牌粉丝
根据NPD Group发布的报告显示,护肤产品以及化妆品小样在美国已经发展成为一个庞大的市场,这一趋势也体现在中国美妆市场上,小样成为更多美妆爱好者关注的热门,小样营销也已经成为诸多美妆品牌的惯用手段。

说到开店契机,创始人Damien很是随意,当时的想法是把门店当做一个仓库,希望上海的顾客能更快拿到货品,在线下还可以体验或者参与一些品牌方的小活动。单纯的因为家楼下的店铺租金很便宜,后来这里就成了话梅的家门店的位置。

话梅的小样区是最受年轻客群喜爱地方,相比于动辄上千的正装,几十到上百左右的小样消费成本更加容易负担,满足高端悦己型消费者和Z世代追潮型消费者尝鲜需求的同时,又在行业端填补了美妆零售集合店在小样维度上的空白。

其实话梅的野心不仅仅是停留在小样的销售上,而是以大品牌小样为切入,触达更多的消费人群,聚集目标圈层的潜在客户,培养这类人群成为自己品牌的粉丝,并从中获取更高的利润。
面对同质化越来越严重的美妆集合店赛道,HARMAY話梅一方面强化供应链,据悉,HARMAY話梅所售的大牌以及海外小众品牌达400多款,SKU超9000个;另一方面,HARMAY話梅与咖啡茶饮完美结合,用更多品类的SKU去提高用户复购率并进一步提高客单价。同时,话梅将每个店面都打造一个“美和美好生活”的场景,每一家门店都会留出一个橱窗与艺术家合作,即使门店只有200平,也会做成一个Gallery的形式。

21年国庆黄金周,HARMAY话梅全新社区店「话梅坊」开业,位于上海武康路55号,成为武康路社区的全新坐标。
这家店与以往的话梅不太一样,采用老上海随处可见的红砖作为四层建筑的外墙灵感,与周边一带历史建筑融为一体,旨在“向武康路社区致敬”。
其中,一层“社区大会”作为公共空间,完全向街区打开,户外设有话梅报刊亭、宠物饮水区、长凳等,赋予了这个街区新的生机。“这里将承载更多本土社区功能,与生活在这里的人们一同探寻更多可能性。”

一楼还设有咖啡角「马里昂巴咖啡角」,还供应独具上海味道的特色点心和周边限定(例如话梅限定麻将)。
第二层“上海平面”,还原了老上海的房间设计,将具有老上海特色的梳妆台、床头柜、席梦思床垫、木质陈列框架均摆满商品。三层的空间体现了话梅的仓储基因,水泥墙体和黄色瓷砖充满浓烈的上海味道。

四层作为“城市客厅”,顶楼露台还立着竹竿,挂着衣服,很好的诠释了老上海弄堂文化,顾客同样可以在这里小憩聊天,进一步强化了“社区感”和生活气息。

在建筑内部上下穿梭,或只是在公共广场上坐观来往人行,话梅坊创造着强烈的本土印象,也让人窥见其内在蕴含。在这里,所有的不期而遇和丰富的分层空间构成了一个独属于上海的地方。我们希望,对你们而言,它亦是独一无二。





话梅的御用设计团队AIM Architecture(AIM恺慕建筑设计)是由比利时建筑师Wendy Saunders与荷兰建筑师Vincent de Graaf于2005年创立的建筑与室内设计事务所,由AIM操刀设计的零售空间通过建立鲜明的视觉语言,将話梅特色的仓储式经营模式转变成了具有品牌认知度的形象标志。

△ Wendy Saunders与Vincent de Graaf
精选AIM设计6个话梅店面设计
01
HARMAY Chongqing
中国·重庆

山城重庆,有着独特的地形肌理和城市空间层次,这也造就了形态各异的建筑空间和结构。HARMAY重庆店位于一个购物中心和公共广场的交界处,AIM以温暖且充满活力的色彩和具有切割感的几何造型带来视觉上的冲击,灵活地应对带状的场地和内部高差变化。




设计团队走访了兼具历史与人文价值的重庆地下防空洞,并在工厂空间设计的启发下将极富机械感的传送带装置作为商品陈列的货架,引导顾客跟随移动的装置探索这个“地下工厂”,造就了独特的空间体验。





©WenStudio &、顾博文

△平面图
02
HARMAY Wuhan
中国·武汉

©WenStudio
HARMAY武汉店是一栋始建于20世纪40年代的日本租界建筑,AIM将时间作为串联三层空间的主导线索,通过材料和空间的细节暗喻不同的历史时刻。此外,店内还有一个垂直方向的仓储及送货系统,凭借机械、科幻感的造型模拟时光穿梭机,引导顾客以全新的视角来探索丰富的空间层次。




©WenStudio
一层的室内的陈设和家具大量使用了厚重的石墩和深色的木材,货架和展示岛的排布唤起了人们对于街角商店的记忆。二层的形象较之一层则更加保守,通过阵列的仓储钢架呼应了品牌的历史。位于阁楼的空间一半是后仓,一半是面向公众开放的露台,占主导地位的垂直仓储结构与古老的木质屋顶形成了鲜明的对比,丰富了时间维度的层次表达。






©WenStudio

一层平面布置图

二层平面布置图

三层平面布置图
03
HARMAY Chengdu
中国·成都

©Dirk Weiblen
随着HARMAY线下实体店的扩展和成长,品牌方和设计团队愈发重视购物体验和品牌精神的营造。位于太古里的成都店以四川历史悠久的“蜀道”为设计理念和切入点,利用现代的材料和表现手法重新演绎了这一历史元素,在新旧之间取得了完美的平衡。





©Dirk Weiblen
拾级而上,两侧的原生钢板装置如夹道的山体一般引人深入,方格状的货品架形成错落有致的弧形墙面,配合点缀的绿植营造出松弛的氛围。二层空间的后方同样插入了名为“我们都是动物”的实验空间,以线上订购的方式出售未经动物试验的产品。





©Dirk Weiblen

一层平面布置图

二层平面布置图
04
HARMAY Shanghai Xintiandi
中国·上海

©Dirk Weiblen
上海新天地是近年来高速发展的热门购物区和城市观光地之一,位于新天地腹地的HARMAY在一众奢侈品购物区内独辟蹊径,将高端美妆线的产品与牛奶、香蕉等日常食副品一同销售,以商超的形式创造零售的新体验,呼应曾经繁华的集市文化。






©Dirk Weiblen
一层的外立面通过大型的橱窗完全对外开放,使行人和顾客能够轻松地与之产生互动。二层的空间则有意地利用笼子造型的装置制造冲突与不适感,并在装置内放置了一块写有“我们都是动物”的标识牌,借此宣传未经动物试验的产品,呼吁减少相关的测试。



©Dirk Weiblen

一层轴测示意图

二层轴测示意图
05
HARMAY Aranya
中国·秦皇岛

©WenStudio
位于秦皇岛的HARMAY阿那亚店坐落在一片活跃度较低的公共广场上,因此在进行室内设计之前,如何激活场地、从外部吸引人流才是设计团队所要面对的首要问题。AIM利用镜面的装置模糊了虚拟与现实的边界,并通过视觉上的错乱效果激发行人的互动,为场地注入了活力。




©WenStudio
店内的空间依然采用品牌标准的仓储式货架来组织空间,但又在入口处增加了图书与杂志区来模拟快闪空间,借此传递品牌对于“美”的深层理解与理念。此外,店内还增加了一个饮料吧,通过嵌入式的点单口和出餐口对外开放,增加了内外空间的联系。




©WenStudio

△平面图
06
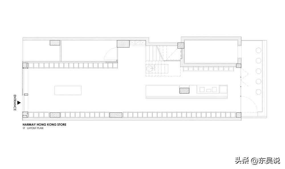
HARMAY HongKong
中国·香港

©Dirk Weiblen
香港闹市给人留下的印象总是熙攘的人群、蜿蜒的窄巷以及林立的商铺,为了在这种信息过载的繁杂环境中脱颖而出,AIM在视觉呈现上反其道而行之,利用极简的表达手法和粗粝、原始的感官冲击吸引行人的视线,寻回传统线下购物的参与感。




©Dirk Weiblen
一楼的货架陈列以老香港的药铺为参照,将琳琅满目的商品收纳在整面的铝制抽屉柜中;二层的储物柜式货架则悬挂在天花板上,利用镜面的不锈钢板反射出裸露的砖墙和水磨石地板,借视觉上的错觉激发顾客的探索欲,带来创新的购物体验。


©Dirk Weiblen

一层平面布置图

二层平面布置图
延展阅读

说商业 | 222个首店品牌的亚洲最大下沉式商业成都SKP惊艳亮相

说创新 | 越后妻有大地艺术祭,艺术赋能乡村振兴

说设计 | 乌克兰的HAY 精品酒店
| 诗 19:8|
耶和华的训词正直,能快活人的心
耶和华的命令清洁,能明亮人的眼目

近年来,墙布越来越流行,在蓬勃的市场态势...

戒指自古以来就有着情感意义,戒指戴在不同...

安徽雅丽家智能家居有限公司自2001年成...

芭蕾舞继续推动艺术教育增长脚背绷紧,足尖...

维多利亚女皇肖像在四百多年前的瑞士,怀...

纵览品牌长达147年的历史,从过往单品中...
名品导购网(www.mpdaogou.com)ICP证号: 鲁ICP备2025191931号-2
CopyRight 2005-2025 版权所有,未经授权,禁止复制转载。邮箱:mpdaogou@163.com